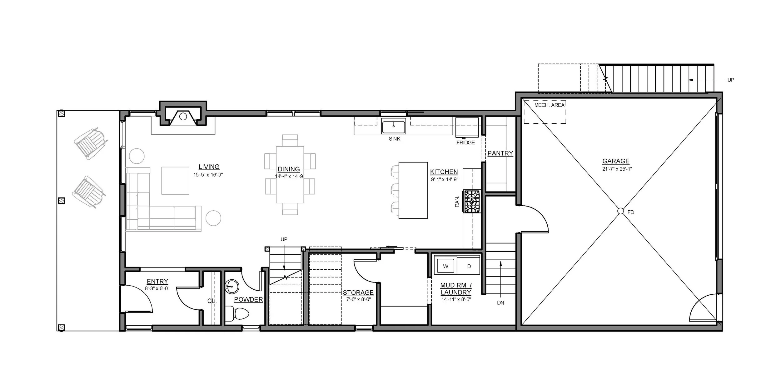
Second Family Room Floorplan | Lots 60-78
$1,850,000
BED | BATH
4 Bed | 4 Bath
SIZE
2,685 SF
GARAGE
2 Spaces
LOT SIZE
.14 Acres
FLOORPLANS
Main Level | 1,056 SF
Upper Level | 1,629 SF
Floor plans are illustrative in nature and are not an exact representation.
FEATURES & SPECIFICATIONS
Welcome to The Glen, Steamboat Springs’ newest and most vibrant neighborhood!
Located just three miles from downtown Steamboat Springs, less than seven miles from the world-famous Steamboat Ski Resort, and minutes from scenic trails and outdoor adventures, home is the ideal gateway to the best of Colorado living. Finish selections and upgrade options are available. Don’t miss this opportunity to own a piece of Steamboat’s newest and most exciting development—The Glen isn’t just a neighborhood, it’s a lifestyle!
